Jonathan Clements Architects
Contemporary Architecture in Sheffield, Yorkshire and Derbyshire
Portfolio
Single Storey & Kitchen Extensions
Two Storey Extensions
Loft Conversions
Other Projects
About
Process
Reviews
Contact
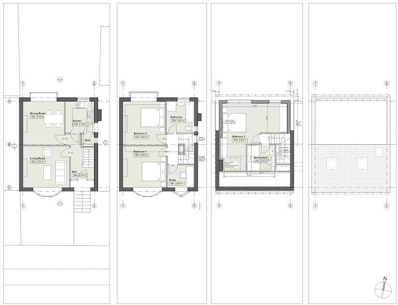
Hastings Road
Top