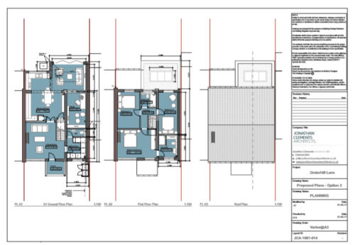
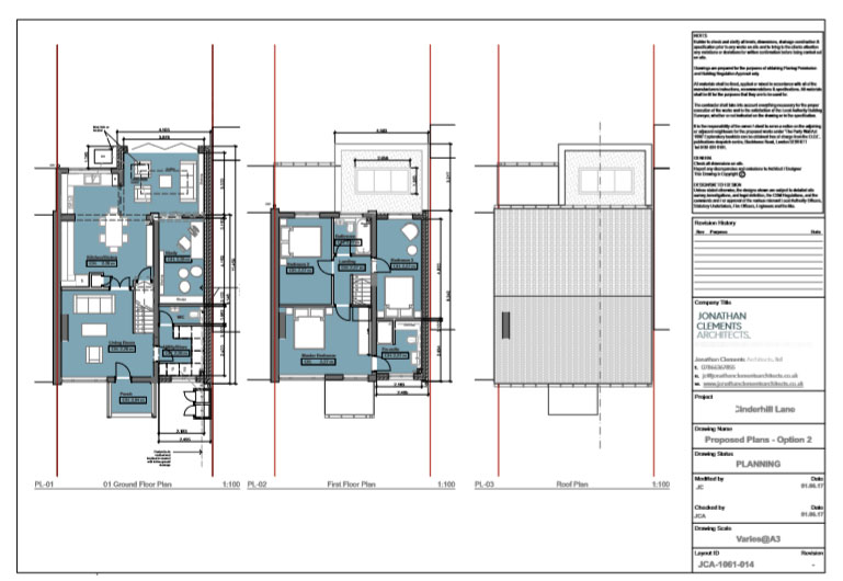
cinderhill-lane-architect-sheffield-3 Post navigation Published incinderhill-lane-architect-sheffield-3